New, California-Modern Home in San Carlos

Scroll to Content

Details

This newly constructed property was built on a spacious lot in the lower Devonshire Canyon of San Carlos. The California-modern design home features an open floor plan and expansive glass walls that look out into serene views of nature from nearly every room. This prime neighborhood is within close proximity to downtown San Carlos and top-rated schools.

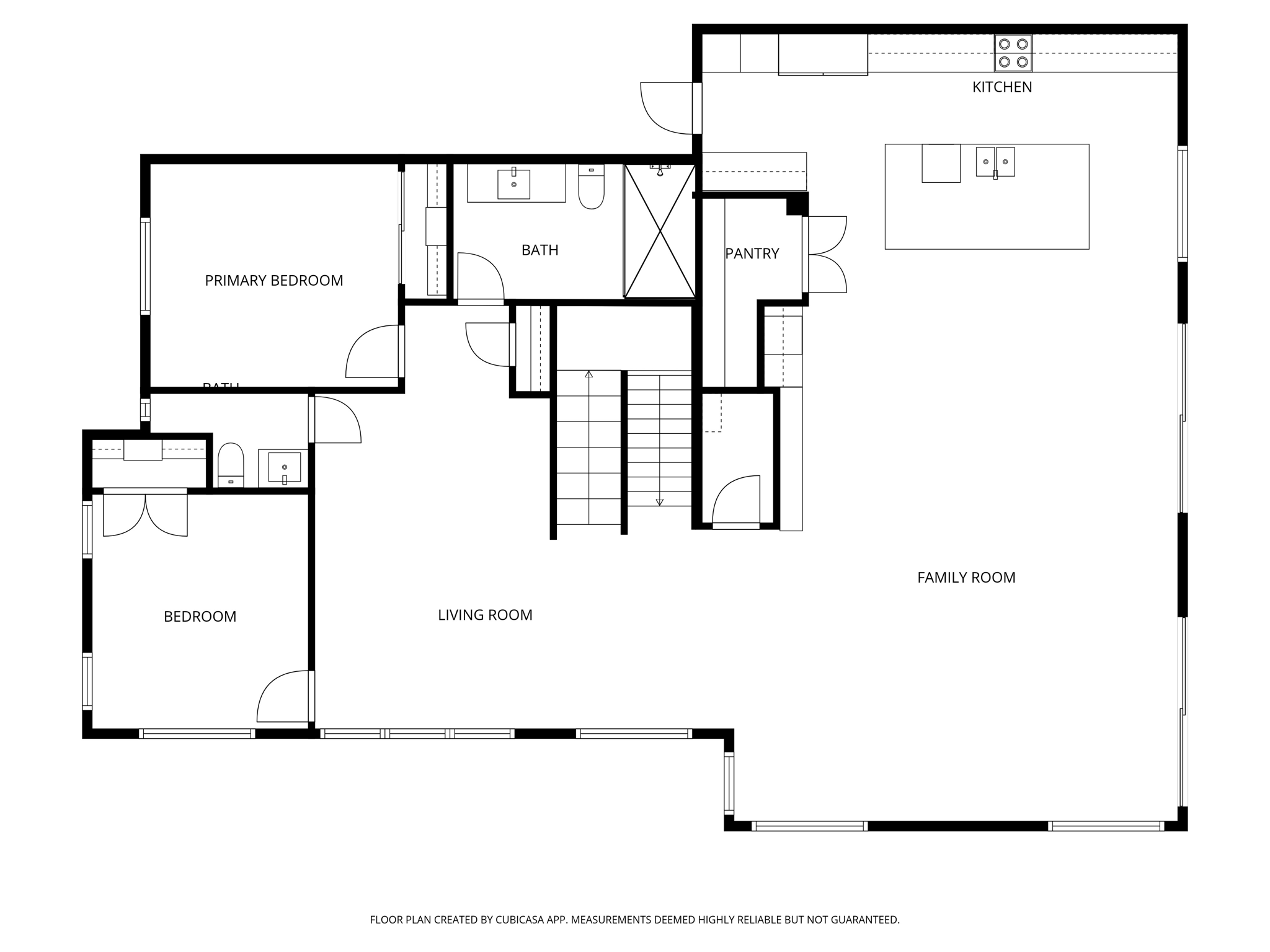
The main living area has sophisticated design elements, high ceilings, floor-to-ceiling windows, and an open-concept kitchen that provides for easy entertainment. Large glass doors connect seamlessly to an inviting landscaped yard that is perfect for indoor-outdoor living.

Home chefs will appreciate the Ilve range, two dishwashers, and walk-in pantry. The dining area fits a large table and graciously flows to the living room.

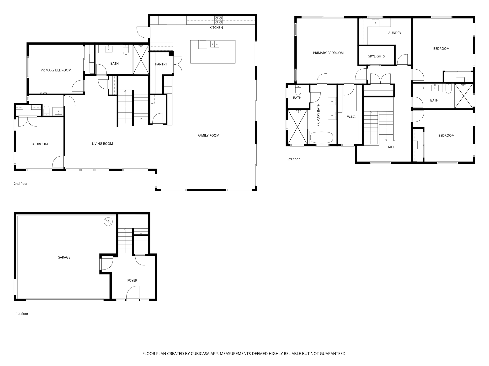
The main living floor has a family room, two bedrooms, a powder room, and a full bathroom—perfect for guests and/or a home office.

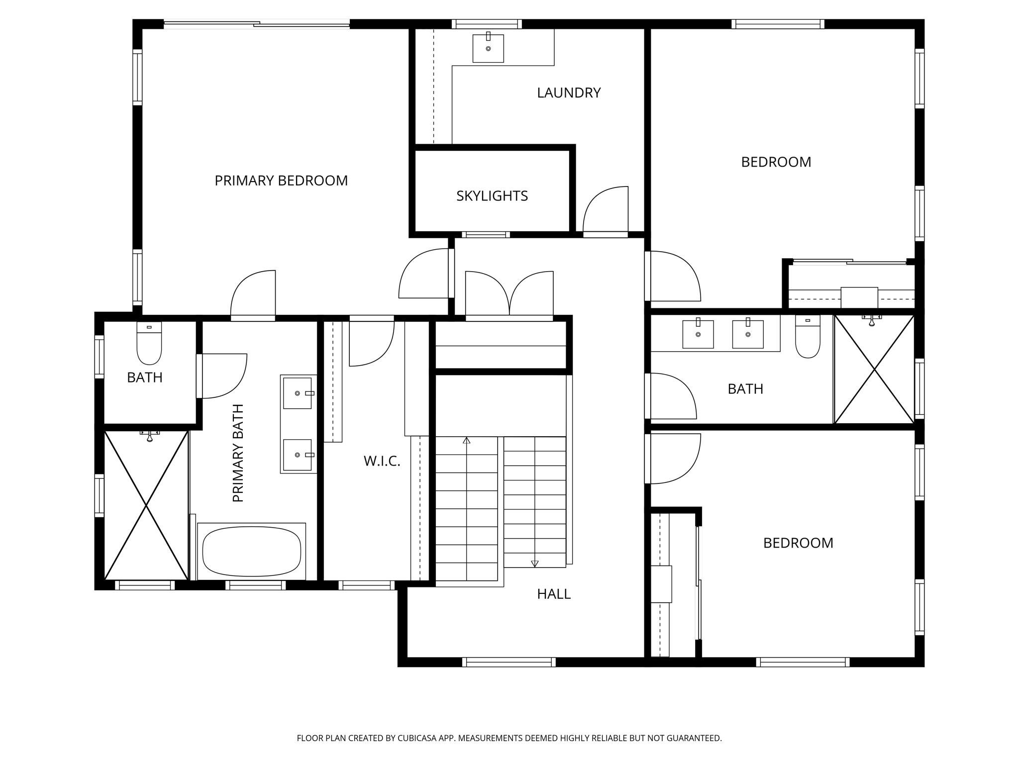
Upstairs, three additional bedrooms include a primary suite with a private deck that looks out into a large backyard. The primary bathroom has a luxurious shower and a freestanding tub. This floor also has a large laundry room.

This property is a truly rare find on the Mid-Peninsula!

  • $5,295,000
  • 5 Bedrooms
  • 3.5 Bathrooms
  • 3,545 Sq/ft
  • Lot 0.35 Acres
  • 2 Parking Spots
  • Built in 2026
  • MLS: 82041455

Images

Videos

Floor Plans

3D Tour

Content Coming Soon

Contact

Feel free to contact us for more details!

Carrie Du Bois

Carrie Du Bois

Golden Gate Sotheby's International Realty

+16507669069

carrie.dubois@ggsir.com

Golden Gate Sotheby's International Realty